
DA Design Examples – Coming soon
Drafting Examples – Coming soon
Vectorworks Training – Coming soon
Vectorworks Template – Coming soon
Whether you need existing floor plans for real estate marketing, design ideas or seek future renovations or Development Approval, iNDS has you covered
Scroll for more information
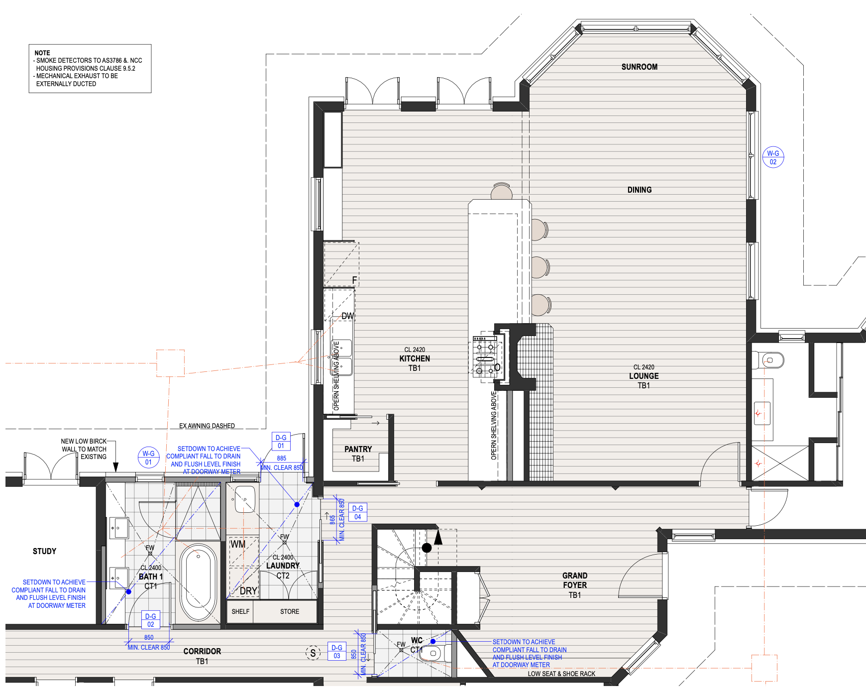
ACCURATELY DRAFT YOUR EXISTING PROPERTY
iNDS streamlines the drafting service directly to you, providing the chance to assess and contribute your own design ideas, which can later be applied to your final CAD or documentation set should you wish to proceed into concept design.
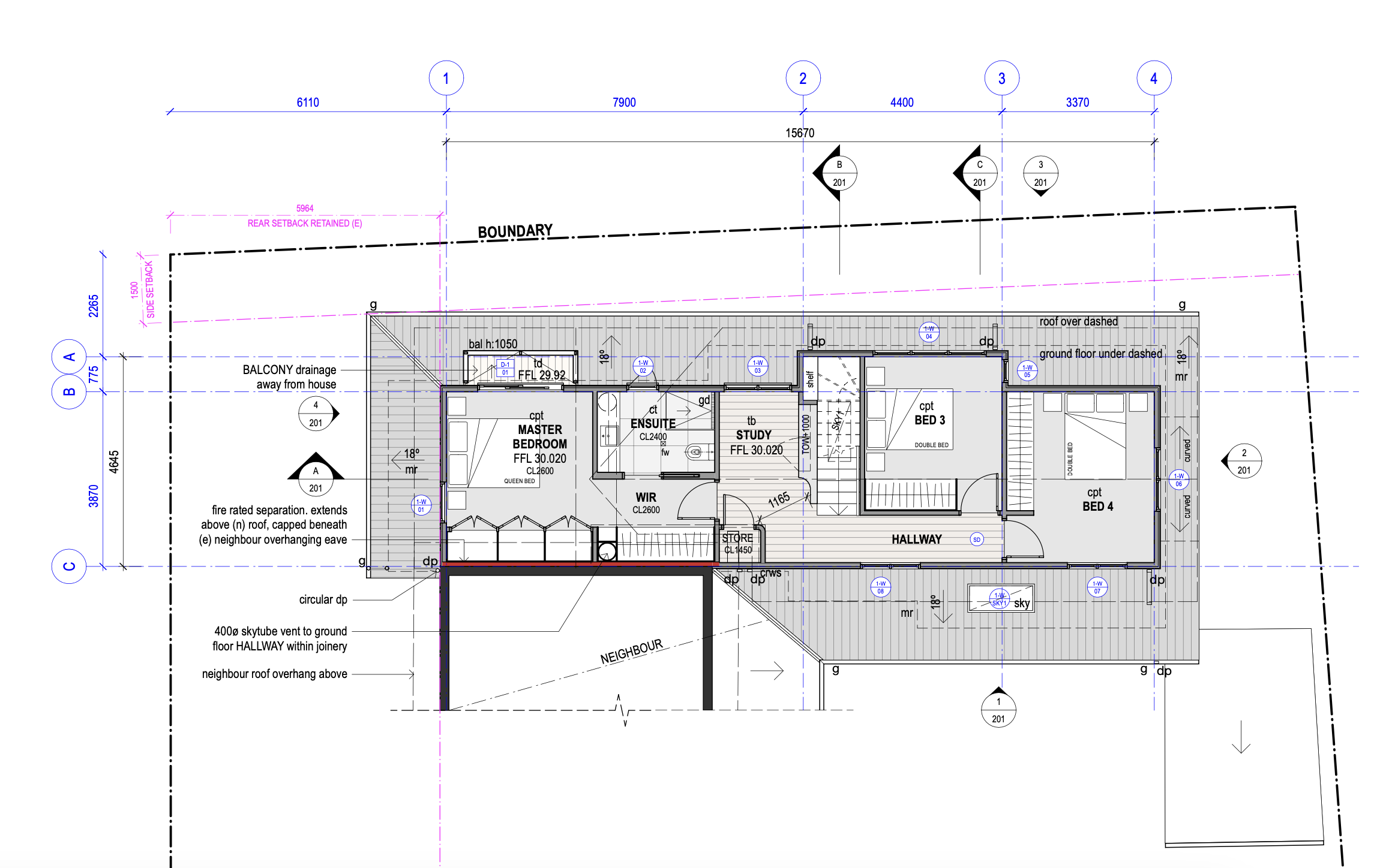
DESIGN CONCEPT
Floor plans are honed down from the conceptual floor plans and sketches to Pre-DA-presentable using CAD software. At the completion of the Design Concept stage, you will require the services of consultants to assist in future stages.


iNDS develops the design and prepares more detailed drawings. These drawings can be used by the Client for a Development Application to council.
Achieving a DA approval with or without the intention of committing to construction stage is used as a tactic by property investors to increase the price of land before selling, as it demonstrates two important capabilities to potential buyers:
DA & CDC SUBMISSION
For general purpose Pre-DA, DA or CDC includes:

About the Masters of Architecture Graduate & Lead Designer:

Jonathan Edelstein was taught by architectural juggernauts such as Australia’s only Pritzker Prize winner Glenn Murcutt, Professor of Architecture Anthony Bourke of UTS, Australian Institute of Landscape Architects NSW President Tanya Woods and 3XN/GXN Architects Partner Lasse Lind – receiving High Distinctions.
In the last 6 years, Jonathan has managed or contracted for a number of small to large scale luxury residential, multi-residential, interior, heritage, educational and boutique hotel accomodation projects with MHDP Architects, Domushomes and Campbell Architecture.

DISCLAIMER
As iNDS does not yet have a registered architect, services extend to drafting and designing up to DA, unless undertaking contracting work via a licensed company.
The level of service can be basic for concept-use or extensive to an architectural practice’s standard, as the Lead Designer has been professionally trained to provide this service.
iNDS is able to refer clients to trusted project managers and builders.

CONTACT
info@intelligentdesignstudio.com.au
0414 216 277
iNTELLiGENT DESiGN STUDiO